CGI of proposed club house - (SiRowe Architects)
caversham heath golf club
Arc are appointed by Caversham Heath Gold Club to provide landscape architectural services for the redevelopment and expansion of the club house.
Located wihtin the Chilterns Area of Outstanding Natural Beauty, Arc prepared a Landscape and Visual Appraisal which assessed the effects of the proposed development on both the landscape, views from nearby footpaths and on the AONB.
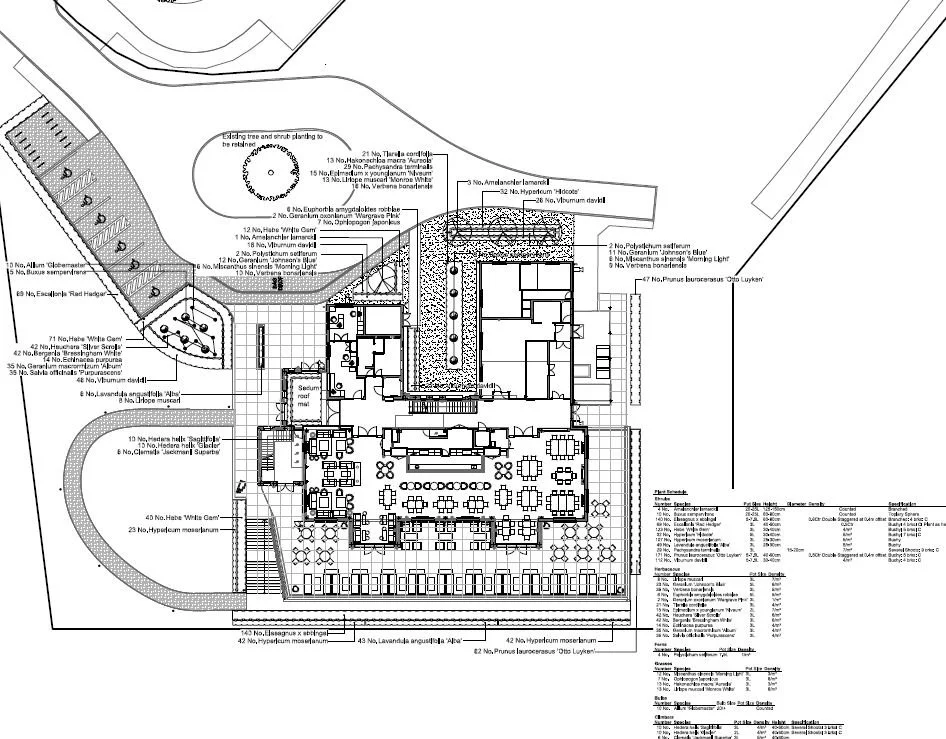
Upon receipt of planning approval in 2021, Arc were appointed to prepare detailed planting plans to clear planning conditions.
KEY SERVICES
Site assessment
Landscape and Visual Appraisal (LVIA)
Detail planting design proposals
Clearance of planning conditions
